W2 Coastlink Court Yatala QLD
Brand New Industrial Warehouse
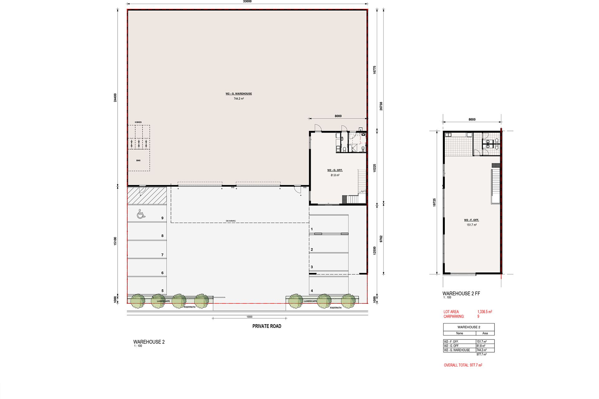
– For Sale | 977.7sqm* total building area
– Incl. 744.2sqm* warehouse
– Incl. 233.5sqm* corporate grade office over two levels
– Total land area of 1,336.5sqm*
– Commercial grade flooring & air-conditioning on both levels
– Internal warehouse clearance of min 7.5m under beam
– 6 x 6m wide electric roller shutters
– Industrial crossovers suitable for large articulated vehicles
– Exceptional access to the M1 via Exit 38
This unique opportunity is situated in the heart of the Yatala Enterprise Area. Ideally located between the two largest consumer markets of Brisbane and the Gold Coast with direct access from the M1 via Exit 38 and Exit 41 in both north and south directions.
*Approximately.
Contact Agent
Property Type
Industrial
Overview
For Sale
